Fire Station 5 Replacement

Share Fire Station 5 Replacement on Facebook Share Fire Station 5 Replacement on Twitter Share Fire Station 5 Replacement on Linkedin Email Fire Station 5 Replacement link

The City of Columbia is planning to replace Fire Station No. 5 at 1400 Ballenger Lane. The new facility will be constructed on the same site, located near the intersection of Ballenger Lane and Ria Street in northeast Columbia.

Why replace the current station?

The existing station was built in the 1970s and has reached the end of its useful service life. Over time, ground settlement has caused structural concerns and the building no longer provides adequate space or modern facilities to support current fire service operations.

As Columbia continues to grow, particularly along the northeast corridor, the Columbia Fire Department must ensure that its facilities can support reliable emergency response, appropriate staffing levels and modern safety standards. Replacing Station No. 5 at its current location will allow the department to maintain response coverage while providing improved facilities for firefighters and administrative staff.

What is being planned?

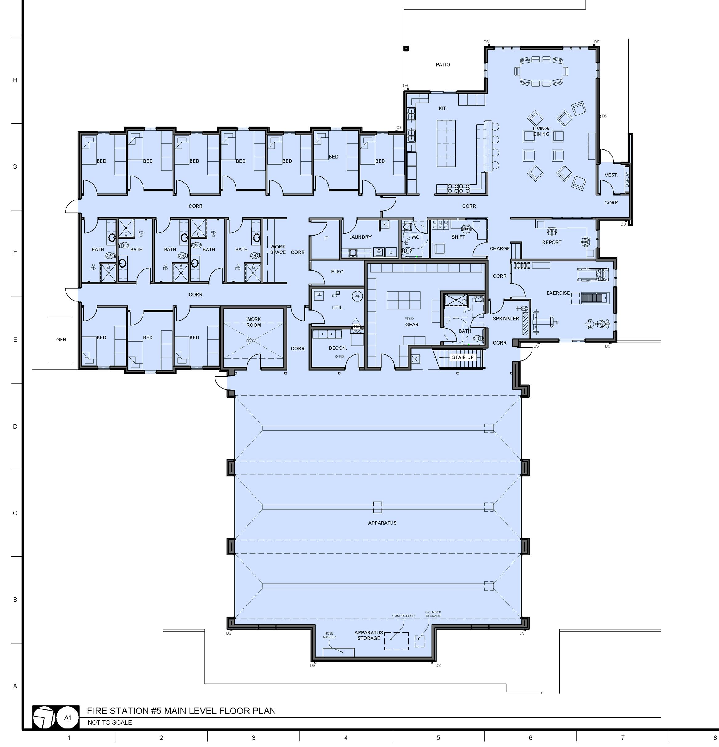
The new station is designed to support current and future service needs. Planned features include:

  • Three apparatus bays capable of housing the City’s largest emergency vehicles
  • Living, dining and kitchen spaces
  • Office and report-writing areas
  • Training and storage space, including mezzanine areas
  • Gear storage and decontamination facilities
  • Exercise space
  • Sleeping quarters and restroom facilities for firefighters

The project will incorporate energy-efficient systems, water conservation fixtures and on-site renewable energy readiness. Construction materials will prioritize recycled and regionally sourced products where feasible. The site design will include stormwater mitigation strategies and preservation of natural areas where possible. A community garden equal to or larger than the existing garden is also planned.

Get Involved

Community input is an important part of the design process. An informal open house meeting concerning the replacement of Fire Station No. 5 will be held from 5:30 to 6:30 p.m. Wednesday, March 18, in Room 1C of City Hall, 701 E. Broadway.

If you are unable to attend the meeting, please leave a comment on this page. Public feedback will be considered as the design progresses.

The City of Columbia is planning to replace Fire Station No. 5 at 1400 Ballenger Lane. The new facility will be constructed on the same site, located near the intersection of Ballenger Lane and Ria Street in northeast Columbia.

Why replace the current station?

The existing station was built in the 1970s and has reached the end of its useful service life. Over time, ground settlement has caused structural concerns and the building no longer provides adequate space or modern facilities to support current fire service operations.

As Columbia continues to grow, particularly along the northeast corridor, the Columbia Fire Department must ensure that its facilities can support reliable emergency response, appropriate staffing levels and modern safety standards. Replacing Station No. 5 at its current location will allow the department to maintain response coverage while providing improved facilities for firefighters and administrative staff.

What is being planned?

The new station is designed to support current and future service needs. Planned features include:

  • Three apparatus bays capable of housing the City’s largest emergency vehicles
  • Living, dining and kitchen spaces
  • Office and report-writing areas
  • Training and storage space, including mezzanine areas
  • Gear storage and decontamination facilities
  • Exercise space
  • Sleeping quarters and restroom facilities for firefighters

The project will incorporate energy-efficient systems, water conservation fixtures and on-site renewable energy readiness. Construction materials will prioritize recycled and regionally sourced products where feasible. The site design will include stormwater mitigation strategies and preservation of natural areas where possible. A community garden equal to or larger than the existing garden is also planned.

Get Involved

Community input is an important part of the design process. An informal open house meeting concerning the replacement of Fire Station No. 5 will be held from 5:30 to 6:30 p.m. Wednesday, March 18, in Room 1C of City Hall, 701 E. Broadway.

If you are unable to attend the meeting, please leave a comment on this page. Public feedback will be considered as the design progresses.

Page published: 27 Feb 2026, 02:50 PM